启东市东方液压件有限公司
启东市东方液压件有限公司
专业生产:马达轴向柱塞泵,定量轴向柱塞泵,液压机专用柱塞泵 ,变量轴向柱塞泵
·  轴向柱塞泵
·  油泵电机组
地址启东市经济开发区海洪工业园灵峰路718号
电话0513-85393983
手机13706283978
联系人王辉
电子邮箱qddfyyj8@126.com
您现在的位置:网站首页 - 新闻动态
直轴式轴向柱塞泵的典型结构
发布时间: 2022/8/20
          直轴式轴向柱塞泵的典型结构
  ①通轴式轴向柱塞泵
  A、定量泵 图24所示为一种通轴式定量轴向柱塞泵结构。传动轴1贯穿斜盘2和回程盘3,并由滚珠轴承11和滚柱轴承9支承,左端装有骨架油封12。柱塞5的球状头部装在滑履4的球窝内,中心弹簧10与回程盘3构成的回程机构,将滑履限位紧贴在斜盘2的斜面上。泵的配流方式为平面配流。
  当原动机透过传动轴1带动缸体按图4-24所示方向转动时,柱塞组件因斜盘斜面关系,相对于缸体作往复运动,在滑履从斜盘斜面的最上点滑向最下点的过程中,柱塞组伸出缸体孔,这时柱塞与缸体孔形成的密封容腔逐渐增大,油液经泵盖8的流道a、配流盘7的窗口被吸人增大的密封容腔内。在滑履滑过最下点向最上点滑去的过程中,柱塞组向缸体孔内移动,故密封容腔逐渐减小,油液经配流盘另一侧窗口和泵盖的流道b压出。滑履与斛盘楣接触处的油室c,通过柱塞中间的小孔d与缸体中的工作腔相连,压力油进入油窒后在滑履与斜盘的接触面间形成了一层起静压支承作用的油膜,使滑履作用在斜ti上的力大大减小了,故磨损也减小了。该泵因斜盘倾角不变,故为定量泵。
  
  图24一种通轴式定量轴向柱塞泵结构
  1-传动轴;2-斜盘;3--N程;4-滑曩;5--柱;6-缸体;7-配流盘;8-泵盖;9-滚柱轴承;10-中心弹羹;11-滚珠辘承;12-骨槊油封
  B、变量泵 图25所示为一种通轴式变量轴向柱塞泵结构。该泵采用耳轴式斜盘6;柱塞3靠中心弹簧10、回程盘5和球铰9回程;平面配流,配流面在后盖1端面上,故省略了配流盘零件。纵向集中布置的变量机构8由泵的出口油压直接控制。
  此种泵压力较低,结构简单,重量轻,成本低,其效率比叶片泵高约5%,寿命长于叶片泵,噪声也接近于叶片泵,适用于作开式系统的液压源。邵阳维克液压有限责任公司从美国威格士(Vickers)公司引进技术生产的PVB系列通轴泵即为此种结构(图26为泵的实物外形),它可以采用矿物液压油、水一乙二醇液或油包水乳化液作为工作介质,采用液压油时最高压力达21MPa,最高转速达3600r/min。除了油压直接控制变量外,PVB系列通轴泵有压力补偿、最大排量可调压力补偿、中压压力补偿、最大排量可调中压压力补偿、遥控压力补偿、最大排量可调遥控压力补偿、负载传感和限压式负载传感等多种变量方式。
  
  图25 一种通轴式变量轴向柱塞泵结构
  1-后盖;2-缸体;3-柱塞;4-滑履;5-回程盘;6-斜盘;7-传动轴;8-变量机构;9-球铰;10-中心弹簧
   
  图26 通轴式变量轴向柱塞泵实物外形(成格士PVB系列,启东市东方液压件有限责任公司产品)
  图27所示为另一种通轴式变量轴向柱塞泵[东方公司PV系列]。该泵为通轴传动结构,它有9个柱塞5,斜盘3的倾角由变量控制缸(活塞)6、控制阀7和复位弹簧8组成的变量机构(补偿器)操纵调节,补偿器有标准压力补偿、恒功率补偿、负载传感和电液排量控制四种形式(图28)。泵的公称压力为35MPa,排量范围为16--270mL/r,转速为1800--3000r/min。该泵特点是变量响应快(行程自零到最大的响应时间小于70ms,行程自最大到零的响应时间小于40ms);补偿器具有主动释压作用,降低了向零流量变量时的压力峰值;在低压下仍具有稳定的补偿调节功能,噪声低,9柱塞设计并采用了压缩容积新技术使流量脉动减至前所未有的最低水平;可单泵和多泵串联连接,同规格、同类型及几乎具有相同安装法兰的泵均.--I坌li合安装(图29)。该泵适用于开式液压系统。
  
  图27 PV系列通轴式变量轴向柱塞泵结构 1-传动轴;2-壳体;3-斜盤;4-缸体;5-柱塞;6-变量控制缸(活塞);7-控制閥;8-复位弹簧;9-限位调节机构
     
  (a)带标准压力补偿器的泵          (b)带恒功率补偿器的泵
  
  (c)带负载传癌补偿器的泵 (d)带电液排量控制的泵
  图28 PV泵的变量机构(补偿器)
  C、带有辅助泵的变量泵 图4-30所示为带有辅助泵的通轴式变量轴向柱塞泵结构。该泵的主泵后端盖装有辅助泵11,用于操纵变量机构和系统的补油。变量缸12垂直于传动轴1轴线横向布置,采用支承在只有半圆圆柱滚子轴承2上的托架式斜盘3,球面配流盘配流,利用碟形弹簧4的弹簧力的球铰回程结构,柱塞缸孔轴线与泵传动轴中心线倾斜。其优点是柱塞组因离心力的作用有一向缸孔外伸的分力,使其靠向斜盘,但加工不便。该泵结构紧凑,用于闭式系统的液压源。贵州力源液压股份有限公司引进德国技术生产的A4V系列通轴泵,即为此种结构,有多种变量方式,其主泵最高压力高达45MPa,辅助泵最高压力为4MPa。其实物外形和液压原理如图31所示。
        
  (a)带标准压力补偿器的泵     (b)带恒功率补偿器的泵
    
  (c)多泵组合PV/PV        (d)与齿轮泵的组合PV/PGP
  图29 PV泵的组合安装形式
  
  图30带有辅助泵的通轴式变量轴向柱塞泵结构
  1-传动轴;2-滚子轴承;3-斜盘;4-礁形弹簧;5-滑履;6-回程盘;7-球鉸;8-柱塞;9-缸体;10-配油盘;11-辅助泵;12-变量缸
  
  (a)实物外形           (b)液压原理
  图31 A4V系列带有辅助泵的通轴式变量轴向柱塞泵实物外形和液压原理
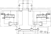
   D、带有补油泵的串联双泵 图32所示为带有补油泵的通轴式变量轴向柱塞串联双泵结构。花键轴伸的齿轮式补油泵15插入后轴的花键孔内随主泵一起旋转工作,用于系统的补油。两个变量缸8和11平行于传动轴1和后轴14的轴线横向布置,通过变量拨杆7操纵斜盘12改变其倾角实现变量控制;球面配流盘21配流;分散弹簧19、22和球铰17组成回程机构。该泵结构紧凑,功率密度大,用于挖掘机系统的液压源。图33所示为泵的液压原理图;宁波广天赛克思液压有限公司生产的SK3V112DT型变量柱塞泵即为此种结构,泵的实物外形如图34所示。
  
  图32 带补油泵的通轴式串联双泵结构
  1-传动轴;2-骨架油封;3-滚子轴承;4-端盖;5-壳体;6-提升器;7-变量拨杆;8,11-变量缸;9-过渡块;10--泵体;12-斜盘;13-止推板;14-后轴;15-补油泵,16-回程盘;17-球铰;18-柱塞滑履副;19,22-分散弹簧;20-缸体;21-配流盘
  
  图33 带辅助补油泵的通轴式串联双泵液压原理
  
  图34 SK3V112DT型带辅助补油泵的通轴式串联双泵实物外形
  ②非通轴式轴向柱塞泵 a.定量泵 图35所示为一种带大直径缸体轴承的非通轴式定量轴向柱塞泵结构。
  在缸体13的轴向缸孔中装有柱塞12,各柱塞的球形头部装有滑履11。回程机构由中心弹簧6和回程盘7等组成,将滑履紧紧地压在斜盘8的斜面上,使泵具有一定的自吸能力。当缸体由传动轴1带动旋转时,柱塞相对缸体作往复运动,缸底的通油孔经配流盘14上的配油窗口完成吸、压油王作。缸体支撑在滚柱轴承10上,使斜盘给缸体的径向分力可由滚子轴承来承受,从而使传动轴和缸体只受转矩而没有弯矩的作用。柱塞和滑履中间的小孔可使缸孔中的压力油通至滑履和斜盘的接触平面间,形成一静压油膜,减小了滑履和斜盘之间的磨损。在缸体的前端设置一个大直径的专用短滚柱轴承10以直接承受侧向力,传动轴仅用来传递转矩j由于斜盘8始终固定于定量端盖9上,不能改变柱塞的行程,故泵的排量是固定。
  
  图35一种带大直径缸体轴承的非通轴式定量轴向柱塞泵结构
  1-传动轴;2-法兰盘;3-滚珠轴承;4-泵体;5-壳体;6-中心弹簧;7-回程盘;8-斜盘;9-螬董;10-滚柱轴承;11-滑履;12-柱寒;13-缸体;14-配流盘;15-进口或出口;16-骨架油封
启东市东方液压件有限公司生产的MCY型轴向柱塞泵即为此种结构,图36是其实物外形,泵的公称压力为31.5MPa,排量范围为2.5-400mL/r,公称转速为1500r/min。
  b.变量泵 图37所示为一种非通轴式手动变量轴向柱塞泵结构。该泵在图35所示的定量泵结构基础上添设变量头部分而构成,前者在此称为泵主体部分。缸体的前端仍然设置短滚柱轴承9.以直接承受侧向力。
  
  图36 MCY型非通式定量辅向柱塞泵实物外形
  
  图37 一种非通轴式手动变量轴向柱塞泵结构
  1-传动轴;2-法兰盘;3-滚珠轴承;4-泵体;5-壳体;6-中心弹簧;7-球铰;8-回程盘;9-滚柱轴承;10-斛盘;11-调节手轮;12-镁紧螺母;13-上法兰}14-调节螺杆;15-镑轴;16-刻度盘;17-变量活塞;18-变量壳体;19-下法别。20-滑履;21-柱塞;22-缸体;23-配流盘;24-压油口;25-骨架油封
变量头是一个手动控制变量机构。调节手轮11使调节螺杆14转动,带动变量活塞17作轴向移动(侧面装有导向键防止转动,图中未画出)。通过中间销轴1 5使支撑在变量机构壳体上的斜盘绕球铰7的中心转动,从而改变斜盘的倾角,即改变了液压泵的排量,排量调节的百分值可粗略由刻度盘16观测。调节完毕后可通过锁紧螺母12紧固。此变量机构结构简单,但操纵不轻便,且工作过程中调节变量必须卸荷操作。
国产SCY系列泵即属于此类泵(图4-38是其实物外形),其容积效率高达95%,额定压力达31.5MPa。其变量控制机构除了手动控制外,还有液压控制、电液比例控制、直流电机伺服控制及步进电机数字控制等,这些泵的主体结构相同,只要更换不同的变量机构即成为相应的另一种变量泵。
图39所示为BCYl1型电液比例控制变量轴向柱塞泵结构,其主体部分由传动轴1带动缸体20旋转,使均匀分布在缸体上的7个柱塞绕传动轴中心线转动,通过中心弹簧6将柱滑组件中的滑履18压在斜盘的斜面上。从而柱塞随着缸体的旋转而作往复运动,完成吸油和压油动作。其变量机构采用了比例电磁铁和外控油压控制,并基于“流量一位移一力反馈"原理工作。通过改变输入比例电磁铁11的电流大小来改变泵的流量,输入电流与泵的流量成比例关系,其电液比例控制变量原理如图40所示。
  
  图38 SCY系列非通辘式手动变量辅向桂塞泵实物外形
  
 图39 BCYl1型电液比例控制变量轴向柱塞泵结构
  1-传动轴;2-法兰盘,3-滚珠轴承;4-泵体;5-壳体;6-中心弹簧;7-球饺I 8-回程盘;9-滚柱轴承;10-斜盘;11-比例电磁铁;12-上法兰;13-镑轴#14-刻度盘;15-变量活塞;16-变量壳体;17-下法兰;18-滑履;19-柱塞;20-缸体;21-配流盘;22-骨架油封
  当比例电磁铁1输入电流为零时,控制滑阀的先导阀芯3在反馈弹簧6的作用下被推至上端,此时压力为户c、流量为q。的外控油液进入变量活塞7的上、下两腔,由于上腔面积A 1大于下腔面积A,故变量活塞被推向最工端位置,斜盘8的偏角为零,泵的排量也为零。当比例电磁铁的输入电流增大时,导阀芯3受比例电磁铁推力的推动而下移,从而使滑阀的上阀口打开,变量活塞7上腔通过液阻R及阀的控制边与回油腔接通,上腔压力降低,变量活塞上移,斜盘偏角增大,泵的排量也随之增大,同时变量活塞的移动又通过压缩反馈弹簧作用在滑阀阀芯上,将滑阀阀芯推到平衡位置,变量活塞即维持在某一确定的平衡位置上,泵的排量也维持在某一定值。反之,当输入电流减小时,滑阀阀芯在反馈弹簧的作用下上移,使通向回油腔的阀口减小,进入上腔的阀口增大,由此上腔压力户。增大,变量活塞向下移动,直至电磁铁推力等于反馈弹簧力时,滑阀阀芯又回到平衡位置。A,变量活塞又在一个新的位置上平衡。在输入电流不变的情况下,若由于负载或其他干扰原因引起变量活塞上移或下移,则变量活塞的该位移变化量,通过反馈弹簧作用在滑阀阀芯上,改变滑闷的开口,使变量活塞的上腔压力升高或降低,以抵抗负载的变化,最终使变量活塞回到与输人电流相对应的位置上,即保持排量不变。由此可见,该比例变量泵可在输入电流的作用下,对排量实现比例控制且有很强的抗负载干扰能力。图41给出了泵的变量特性曲线和液压原理,图42是泵的实物外形。
  
  图40 电液比例控制变量轴向柱塞泵的变量原理
  1-比例电磁铁;2-阀套;3-先导阀芯;4-变量壳体;5-弹簧;6-反馈弹簧;7-变量活塞;8-斜盘
  
  (a)变量特性曲线 (b)液压原理
  图41 电液比例控制变量轴向柱塞泵的变量特性曲线和液压原理
  
  图42 BCYl4-l受电藏比饲控制变量轴向柱塞泵实物外形
  与其他变量控制方式相比,电液比例控制变量柱塞泵具有控制灵活、动作灵敏、重复精度高、稳定性好、可以方便地实现液压系统的遥控、自控、无级调速、跟踪反馈同步和计算机控制一系列优点,适用于工业领域自动化程度要求较高的机械设备。
   ③旋转斜盘式柱塞泵 与常用斜盘式柱塞泵相反,旋转斜盘式柱塞泵的斜盘由泵轴驱动,而缸体则固定在壳体内。这种泵多采用点接触式柱塞并由分散在各柱塞内单独的弹簧或吸油腔内的预压实现回程。按配流形式有间隙密封配流式与混合配流式两种。
  a.间隙密封配流式 如图43所示,传动轴1贯穿用键3、9与之相连的旋转斜盘4和端面或圆柱配流盘7,传动轴旋转时同时驱动麓转斜盘4和配流盘7。此种结构由于需密封的滑动面太多,故未见进一步发展。
  
  图43 间隙密封配流旋转斜盘式柱塞泵结构
  1-传动轴l 2-壳体;3,9-键;4-旋转斜盘;5-柱塞;6-缸体;7-配流盘;8-侧盏
  b.混合配流式现有旋转斜盘式柱塞泵产品主要是滑阀、座阀或两者混合配流。图44所示泵的柱塞本身兼作吸油滑阀,当柱塞4由回程弹簧6的弹性力顶着向外伸时,底盖8上对应的排油座阀7由于腔内油压和自身弹簧的共同作用而关闭,缸筒下腔出现负压,柱塞顶端的棱边打开缸筒中部的吸油环槽时,壳体2中的油液即会充入缸筒;而在旋转斜盘3迫使柱塞下行并重新关闭了吸油环槽后,缸筒下腔中的油液即被压缩,当这部分油液的压力和回程弹簧力的合力超过排油座阀另一侧的诸力时,此阀开启,新的压力油进入排油腔。
   
  图44混合配流旋转斜盘式柱塞泵结构
  1-传动轴;2-壳体;3-旋转斜盘;4-柱塞;5-缸体;6-回程弹簧;7-排油座阀;8-底盖
  旋转斜盘式柱塞泵的优点是旋转部件的转动惯量较小,主要缺点是难以调节旋转斜盘的倾角以制成变量泵。但有些生产厂商新近研究和生产的某些旋转斜盘式柱塞泵产品,已经可提供多种变量控制方式。例如图45所示日本川崎精机株式会社生产的K3VG系列旋转斜盘式轴向柱塞泵,设有高精度电液伺服调节器[ILIS(智能线性化的伺服)],备有压力控制、流量控制、功率控制及复合控制等丰富的控制方式供用户选择,该系列泵的额定压力达34.3MPa,排量范围为63-560mL/r,具有噪声低、效率和可靠性高及使用方便的特点,适用于一般工业机械的开式液压系统。
  
  图45 K3VG系列旋转斜盘式轴向柱塞泵实物外形